Ökologischer Musterschüler
Wo einst die Produktionshallen der Sihl-Papierfabrik waren, entsteht im Süden von Zürich unter dem Titel Greencity ein zukunftsweisendes Quartier. Der ehemalige Industriestandort verwandelt sich seit 2015 sukzessive in ein bunt gemischtes Stadtviertel mit Platz zum Wohnen und Arbeiten. Mit dem Schulhaus Allmend gewann der Schweizer Architekt Manuel Burkhardt hier seinen ersten Wettbewerb und erweiterte das Areal um einen rundum nachhaltigen und zugleich identitätsstiftenden Bildungsbau für Klein und Groß.
Wo einst die Produktionshallen der Sihl-Papierfabrik waren, entsteht im Süden von Zürich unter dem Titel Greencity ein zukunftsweisendes Quartier. Der ehemalige Industriestandort verwandelt sich seit 2015 sukzessive in ein bunt gemischtes Stadtviertel mit Platz zum Wohnen und Arbeiten. Mit dem Schulhaus Allmend gewann der Schweizer Architekt Manuel Burkhardt hier seinen ersten Wettbewerb und erweiterte das Areal um einen rundum nachhaltigen und zugleich identitätsstiftenden Bildungsbau für Klein und Groß.
Greencity – das Viertel der Zukunft?
Mit ihrer Vision der 2000-Watt-Gesellschaft möchte die Schweiz die Energiewende bewältigen und den Primärenergiebedarf senken. Dieser Strategie entsprechend handelt es sich bei der Zürcher Greencity um das erste zertifizierte 2000-Watt-Areal des europäischen Landes. Die Energieversorgung wird zu 100 % mit erneuerbaren Quellen gedeckt. Ein eigenes, hocheffizientes Stromnetz sowie ein umweltfreundliches Mobilitätskonzept komplettieren die Energieinfrastruktur des acht Hektar großen, urbanen Entwicklungsgebiets. Neben Büro- und Wohnbauten für insgesamt rund 6.000 Personen sollte auf dem Areal als einziges öffentliches Gebäude auch eine Schule realisiert werden. Den offenen Wettbewerb für das Schulhaus Allmend konnte der junge Architekt Manuel Burkhardt 2016 für sich entscheiden und gründete daraufhin mit dem Studio Burkhardt sein eigenes Büro. Der Entwurf erfüllte nicht nur die Vorgaben der Stadt Zürich einer fassadenintegrierten Photovoltaikanlage, sondern setzt innerhalb des Viertels auch ein sichtbares, ökologisches Statement.
[See image gallery at www.architektur-online.com]
Bildungsbau mit sozialem Mehrwert
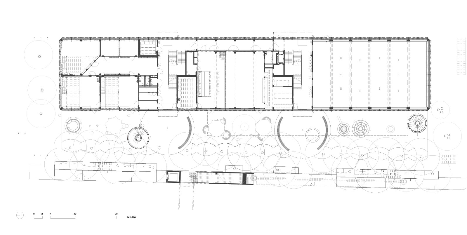
Die Schule ist als schlichter, länglicher Gebäuderiegel mit drei Stockwerken konzipiert. Sie vereint Volksschulklassen und Kindergartengruppen sowie Betreuungsflächen für bis zu 250 Kinder unter einem Dach. Mensa, heilpädagogische Räumlichkeiten, Mehrzwecksaal, Gymnastikraum und Einfeldturnhalle vervollständigen das Programm des Bildungskomplexes für den Nachwuchs der ökologischen Siedlungsbewohner. In Südrichtung schließt der Neubau an den Maneggplatz an und nimmt damit eine städtebaulich interessante Position ein. Parallel zur Bahnlinie und der Maneggstrasse positioniert, entsteht entlang der westlichen Längsseite des Baukörpers ein großzügiger Schulhof, der sowohl zum lebendigen Pausen- als auch zum gemeinschaftlichen Außenraum für das ganze Quartier wird. Das Untergeschoss und die massiven Erschließungskerne des rechteckigen Baukörpers bestehen – dem Nachhaltigkeitsgedanken folgend – aus Recyclingbeton. Ansonsten basiert das Haus auf einer Holzkonstruktion und konnte mithilfe von vorgefertigten Modulen in Systembauweise innerhalb kürzester Zeit errichtet werden. Dank der regelmäßigen Grundstruktur lassen sich auch zukünftige Änderungen einfach umsetzen und so eine möglichst lange Nutzung des Gebäudes garantieren.
Ökologisches Design, kindgerechter Touch
Während das Naturmaterial außen in funktionalem Weiß gehalten ist, bleibt das Tragwerk im Inneren weitgehend unverkleidet. In den als Cluster organisierten Klassenzimmern und Gruppenräumen schafft es in Kombination mit Holzdecken eine warme, angenehme Atmosphäre. Stiegenhäuser und Zirkulationsflächen werden hingegen von funktionalem Sichtbeton geprägt. Auch Leitungen und Installationen bleiben sichtbar und geben den kleinen Nutzern Einblick in die Funktionsweise des Schulgebäudes. Neben umlaufenden Fensterbändern verleihen weiße, halbkreisförmige Elemente den Fassaden des Neubaus ihr charakteristisches Äußeres. Als Stahlrahmen ausgeführt und mit Textil bespannt, legen sie sich vor die Verglasungen im Erdgeschoss und schützen vor direkter Sonneneinstrahlung. In den Innenräumen kreieren farbenfrohe Akzente ein kindgerechtes Umfeld. So gibt es im hohen Sockelbereich bunte Vorhänge, welche das Ambiente individuell verändern und bei Bedarf einzelne Bereiche abgrenzen können. Darüber hinaus findet sich mit Bullaugen ein verspieltes Motiv im gesamten Schulhaus wieder. Runde Ausschnitte und Fenster durchbrechen sowohl Wände als auch Türen und ermöglichen Blickbeziehungen zwischen den einzelnen Bereichen.
[See image gallery at www.architektur-online.com]
Gemeinschaftsraum mit intelligentem Dach
Den krönenden Abschluss des Schulhauses Allmend bildet die als Allwetterplatz bezeichnete Dachterrasse. Als Lieblingsort des Architekten Manuel Burkhardt stellt sie gleichzeitig das Herzstück des energetischen Konzepts dar. Die Terrasse wird über zwei gewendelte Stahltreppen erschlossen, die außen an das Haus andocken, und umfasst Sportplätze sowie ein Waldzimmer – ein von heimischen Pflanzen gesäumter Aufenthaltsbereich mit Blick in die Nachbarschaft. Öffentlich zugänglich, lädt das Dach nicht nur Schüler, sondern auch Bewohner des Viertels ein und sorgt dafür, dass dieses auch abseits der Unterrichtszeiten mit Leben gefüllt wird. Es fungiert aber nicht nur als identitätsstiftende Freifläche: Den Altwetterplatz überspannt ein baldachinartiges Stahlgerüst, das als Unterkonstruktion für die entwurfsbestimmende Photovoltaikanlage dient. Diese beruht auf 500 semitransparenten Glasmodulen mit integrierter Photovoltaik und hat eine Fläche von 1.300 m2. Die Paneele wurden eigens für das Projekt angefertigt und machen den Außenraum als Witterungsschutz ganzjährig nutzbar.
[See image gallery at www.architektur-online.com]
Nachhaltige Energielieferanten der Greencity
Mit den innovativen PV-Modulen reagiert man zum einen auf die Anforderungen der Bauherrin und nutzt zugleich die begrenzte Grundfläche optimal aus. Zum anderen verleiht die intelligente Dachpergola dem Gebäude im urbanen Kontext mehr Sichtbarkeit. Die hauseigene Anlage deckt den Großteil des Strombedarfs der Schule ab. Zusätzlich benötigte Energie für Heizung bzw. Kühlung, Warmwasserversorgung und Lüftung wird – wie im gesamten Quartier – mittels Grundwasser und Erdwärmesonden gänzlich aus erneuerbaren Quellen bereitgestellt und stützt sich auf zwei separate Systeme. Diese beruhen auf je einem Grundwasser-basierten Wärme- und einem Kälte-Kreislauf. Wärme und Kälte werden über ein Fernwärme- sowie ein Fernkältenetz an die Verbraucher des Areals verteilt. Erdwärme kommt dabei als sekundärer Energielieferant lediglich unterstützend zur Regeneration der Erdsonden zum Einsatz. Im Sommer produziert das kleine Solarkraftwerk auf dem Dach des Bildungsbaus sogar mehr, als benötigt wird. Der Überschuss fließt in das Greencity-Stromnetz und leistet somit einen noch größeren Mehrwert für das gesamte Viertel im Süden von Zürich.
Schulhaus Allmend
Zürich
Bauherr: Stadt Zürich
Planung: Studio Burkhardt
Statik: Pirmin Jung + Schnetzer Puskas Ingenieure
Landschaftsplanung: Ganz Landschaftsarchitekt*innen
Grundstücksfläche: 4.500 m2
Bebaute Fläche: 1.572 m2
Nutzfläche: 3.800 m2
Planungsbeginn: 2017
Baubeginn: 2020
Fertigstellung: 2023
Baukosten: 39.5 Mio. CHF
Text: Edina Obermoser
Fotos: Matthias Vollmer / Federico Farinatti

